

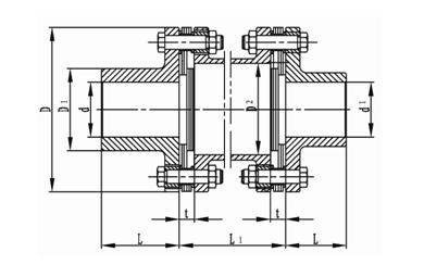
JZMJ型重型机械用膜片联轴器的参数及主要尺寸: (JB/ZQ 4717-98) mm
|
型号
|
公称转矩
Tn
N.m
|
许用
转速
[n]
r/min
|
轴孔直径
d,d1
|
轴孔长度L
|
D
|
D1
|
D2
|
t
|
扭转刚度
×106
N.m/rad
|
转动
惯量
kg.㎡
|
质量kg
|
||
|
J1型
|
Y型
|
L1min
时质量
|
每增加
1m的质量
|
||||||||||
|
JZMJ1
|
63
|
9300
|
20,22,24
|
38
|
52
|
92
|
53
|
60
|
44
|
8±0.2
|
0.010
|
3.7
|
22.79
|
|
25,28
|
44
|
62
|
|||||||||||
|
30,32,35,38
|
60
|
82
|
|||||||||||
|
JZMJ2
|
100
|
8400
|
25,28
|
44
|
62
|
102
|
63
|
72
|
49
|
8±0.2
|
0.018
|
6.3
|
32
|
|
30,32,35,38
|
60
|
82
|
|||||||||||
|
40,42,45
|
84
|
112
|
|||||||||||
|
JZMJ3
|
250
|
6700
|
30,32,35,38
|
60
|
82
|
128
|
77
|
87
|
60
|
11±0.3
|
0.056
|
9.14
|
46
|
|
40,42,45,48,50,55
|
84
|
112
|
|||||||||||
|
JZMJ4
|
500
|
4900
|
35,38
|
60
|
82
|
145
|
91
|
102
|
70
|
11±0.3
|
0.095
|
13.63
|
64
|
|
40,42,45,48,50,55,56
|
84
|
112
|
|||||||||||
|
60,63,65
|
107
|
142
|
|||||||||||
|
JZMJ5
|
800
|
5100
|
40,42,45,48,50,55,56
|
84
|
112
|
168
|
105
|
117
|
83
|
14±0.3
|
0.219
|
23.35
|
84
|
|
60,63,65,70,71,75
|
107
|
142
|
|||||||||||
|
JZMJ6
|
1000
|
4750
|
45,48,50,55
|
84
|
112
|
180
|
112
|
124
|
86
|
15±0.4
|
0.35
|
32.28
|
94
|
|
60,63,65,70,71,75
|
107
|
142
|
|||||||||||
|
80
|
132
|
172
|
|||||||||||
|
JZMJ7
|
1600
|
4300
|
50,55,56
|
84
|
112
|
200
|
120
|
134
|
86
|
15±0.4
|
0.51
|
39.07
|
110
|
|
60,63,65,70,71,75
|
107
|
142
|
|||||||||||
|
80,85
|
132
|
172
|
|||||||||||
|
JZMJ8
|
2000
|
4200
|
55,56
|
84
|
112
|
205
|
120
|
135
|
91
|
20±0.4
|
0.53
|
39.86
|
112
|
|
60,63,65,70,71,75
|
107
|
142
|
|||||||||||
|
80,85
|
132
|
172
|
|||||||||||
|
JZMJ9
|
2500
|
4000
|
55,56
|
84
|
112
|
215
|
128
|
145
|
101
|
20±0.4
|
0.68
|
46.78
|
129
|
|
60,63,65,70,71,75
|
107
|
142
|
|||||||||||
|
80,85,90
|
132
|
172
|
|||||||||||
|
JZMJ10
|
3150
|
3650
|
60,63,65,70,71,75
|
107
|
142
|
235
|
132
|
151
|
109
|
23±0.5
|
0.97
|
56.13
|
140
|
|
80,85,90,95
|
132
|
172
|
|||||||||||
|
JZMJ11
|
4000
|
3400
|
60,63,65,70,71,75
|
107
|
142
|
250
|
145
|
164
|
109
|
23±0.5
|
1.48
|
74.09
|
165
|
|
80,85,90,95
|
132
|
172
|
|||||||||||
|
100
|
167
|
212
|
|||||||||||
|
JZMJ12
|
6300
|
3200
|
60,63,65,70,71,75
|
107
|
142
|
270
|
155
|
184
|
119
|
23±0.5
|
2.13
|
87.65
|
207
|
|
80,85,90,95
|
132
|
172
|
|||||||||||
|
100,110
|
167
|
212
|
|||||||||||
|
JZMJ13
|
12500
|
2850
|
65,70,71,75
|
107
|
142
|
300
|
162
|
194
|
128
|
27±0.6
|
2.93
|
106.23
|
231
|
|
80,85,90,95
|
132
|
172
|
|||||||||||
|
100,110,120
|
167
|
212
|
|||||||||||
|
JZMJ14
|
16000
|
2700
|
70,71,75
|
107
|
142
|
320
|
176
|
213
|
138
|
27±0.6
|
3.98
|
125.23
|
278
|
|
80,85,90,95
|
132
|
172
|
|||||||||||
|
100,110,120,125
|
167
|
212
|
|||||||||||
|
JZMJ15
|
20000
|
2450
|
75
|
107
|
142
|
350
|
186
|
215
|
153
|
32±0.7
|
6.44
|
173.52
|
283
|
|
80,85,90,95
|
132
|
172
|
|||||||||||
|
100,110,120,125
|
167
|
212
|
|||||||||||
|
130
|
202
|
252
|
|||||||||||
|
JZMJ16
|
25000
|
2300
|
80,85,90,95
|
132
|
172
|
370
|
203
|
235
|
158
|
32±0.7
|
8.48
|
200.88
|
338
|
|
100,110,120,125
|
167
|
212
|
|||||||||||
|
130,140,150
|
202
|
252
|
|||||||||||
|
JZMJ17
|
31500
|
2150
|
80,85,90,95
|
132
|
172
|
400
|
230
|
266
|
178
|
32±0.7
|
14.2
|
279.61
|
433
|
|
100,110,120,125
|
167
|
212
|
|||||||||||
|
130,140,150
|
202
|
252
|
|||||||||||
|
160
|
242
|
302
|
|||||||||||
|
JZMJ18
|
40000
|
1950
|
100,110,120,125
|
167
|
212
|
440
|
245
|
280
|
19038
|
38±0.9
|
20.73
|
345.53
|
480
|
|
130,140,150
|
202
|
252
|
|||||||||||
|
160,170,180
|
242
|
305
|
|||||||||||
|
JZMJ19
|
45000
|
1850
|
100,110,120,125
|
167
|
212
|
460
|
260
|
300
|
200
|
38±0.9
|
28.56
|
421
|
551
|
|
130,140,150
|
202
|
252
|
|||||||||||
|
160,170,180
|
242
|
302
|
|||||||||||
|
190
|
282
|
352
|
|||||||||||
|
JZMJ20
|
50000
|
1800
|
120,125
|
167
|
212
|
480
|
280
|
320
|
215
|
38±0.9
|
32.52
|
482.6
|
628
|
|
130,140,150
|
202
|
252
|
|||||||||||
|
160,170,180
|
242
|
302
|
|||||||||||
|
190,200
|
282
|
352
|
|||||||||||
|
JZMJ21
|
56000
|
1700
|
120,125
|
167
|
212
|
500
|
295
|
336
|
225
|
38±0.9
|
43.05
|
536
|
692
|
|
130,140,150
|
202
|
252
|
|||||||||||
|
160,170,180
|
242
|
302
|
|||||||||||
|
190,200,220
|
282
|
352
|
|||||||||||
|
JZMJ22
|
63000
|
1600
|
140,150
|
202
|
252
|
540
|
310
|
360
|
236
|
44±1
|
58.99
|
641
|
794
|
|
160,170,180
|
242
|
302
|
|||||||||||
|
190,200,220
|
282
|
352
|
|||||||||||
|
JZMJ23
|
80000
|
1450
|
140,150
|
202
|
252
|
600
|
335
|
385
|
257
|
50±1.2
|
98.45
|
880
|
908
|
|
160,170,180
|
242
|
302
|
|||||||||||
|
190,200,220
|
282
|
352
|
|||||||||||
|
240
|
330
|
410
|
|||||||||||
|
JZMJ24
|
100000
|
1400
|
160,170,180
|
242
|
302
|
320
|
350
|
408
|
272
|
50±1.2
|
116.15
|
964
|
1020
|
|
190,200,220
|
282
|
352
|
|||||||||||
|
240,250
|
330
|
410
|
|||||||||||
|
JZMJ25
|
125000
|
1300
|
180
|
242
|
302
|
660
|
385
|
445
|
292
|
50±1.2
|
163.85
|
1204
|
1251
|
|
190,200,220
|
282
|
352
|
|||||||||||
|
240,250,260
|
330
|
410
|
|||||||||||
|
280
|
380
|
470
|
|||||||||||
|
JZMJ26
|
160000
|
1200
|
180
|
242
|
302
|
720
|
410
|
485
|
317
|
60±1.4
|
245.9
|
1507
|
1441
|
|
190,200,220
|
282
|
352
|
|||||||||||
|
240,250,260
|
330
|
410
|
|||||||||||
|
280,300
|
380
|
470
|
|||||||||||
|
JZMJ27
|
200000
|
1150
|
220
|
282
|
352
|
740
|
420
|
503
|
322
|
60±1.4
|
275.08
|
1594
|
1550
|
|
240,250,260
|
330
|
410
|
|||||||||||
|
280,300
|
380
|
470
|
|||||||||||
|
JZMJ28
|
250000
|
1100
|
240,250,260
|
330
|
410
|
770
|
450
|
530
|
342
|
60±1.4
|
342.37
|
1807
|
1721
|
|
280,300
|
380
|
470
|
|||||||||||
|
JZMJ29
|
315000
|
1050
|
250,260
|
330
|
410
|
820
|
490
|
559
|
372
|
60±1.4
|
514.91
|
2358
|
2025
|
|
280,300,320
|
380
|
470
|
|||||||||||
|
340
|
450
|
550
|
|||||||||||
|
JZMJ30
|
500000
|
760
|
280,300,320
|
380
|
470
|
875
|
520
|
575
|
419
|
50±1.6
|
28.63
|
2507
|
1915
|
|
340,360
|
450
|
550
|
|||||||||||
|
JZMJ31
|
63000
|
715
|
300,320
|
380
|
470
|
935
|
560
|
610
|
464
|
60±1.9
|
980.83
|
3391
|
2280
|
|
340,360,380
|
450
|
550
|
|||||||||||
|
400
|
540
|
650
|
|||||||||||
|
JZMJ32
|
800000
|
650
|
320
|
380
|
470
|
103
|
600
|
622
|
494
|
60±1.9
|
1368
|
3697
|
2370
|
|
340,360,380
|
450
|
550
|
|||||||||||
|
400,420
|
540
|
650
|
|||||||||||
|
JZMJ33
|
1000000
|
620
|
360,380
|
450
|
550
|
1080
|
660
|
660
|
510
|
66±2.2
|
1689
|
4450
|
2669
|
|
400,420,440,450,460
|
540
|
650
|
|||||||||||
|
JZMJ34
|
1250000
|
576
|
400,420,440,450,460
|
540
|
650
|
1160
|
710
|
750
|
565
|
70±2.3
|
2645
|
5877
|
3446
|
|
480,500
|
|||||||||||||
|
JZMJ35
|
160000
|
520
|
440,450,460,480,500
|
540
|
650
|
1290
|
820
|
820
|
620
|
82±2.6
|
4775
|
8550
|
4120
|
|
530,560
|
680
|
800
|
|||||||||||
|
JZMJ36
|
2000000
|
472
|
480,500
|
540
|
650
|
1410
|
900
|
900
|
685
|
92±2.8
|
7620
|
11211
|
4962
|
|
530,560,600
|
680
|
800
|
|||||||||||